C16nz Umbau c20ne Kabelbaum

  • #1

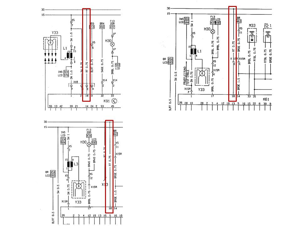
    Hallo ich Bau gerade von C16nz auf C20ne um. Habe Motorkabelbaum und Anlasserkabelbaum vom c20ne, Rest vom C16nz. Nun habe ich diese Belegungs Liste.
    Und habe jetzt folgendes vor also rein theoretisch wie der Motor laufen sollte..


    Vom x11Armaturenbrett rot/blau an anlasserkabelbaum rot/blau. Damit x5 fertig?
    Dann x14 3kabel Farbe auf farbe x11. Bc Tod Weil hab ich nicht. Dann bleibt am x11 nur noch +Leitung... Wohin mit der? Ist das soweit richtig??? :whistling:

  • #2

    Die +Leitung vom Stecker X11 (Pin 5) soll irgendwie zum Pin 18 vom Motorsteuergerät. Das ist abhängig von der Motronic Variante deines Motors (entweder direkt oder über den Stekcer X18 oder X15A).



    Du sollst eigentlich den Stromlaufplan finden, der zu deinem Motor, Motor- und Anlasserkabelbaum passt und dann werden alle deine Fragen beantwortet werden...

  • #3

    Ich kann leider die Pläne nicht lesen.... Ich hasse Elektronik :/
    Für mich muss alles in baby Deutsch... Ist das denn so okay wie ich das vor habe?Wie bekommt den pin18 beim c20ne original Strom??? Ist beim originalen gsi noch irgendwas anders?

    Einmal editiert, zuletzt von adie87 ()

  • #4

    Hast Du die richtige Liste runtergeladen? Es gibt ja drei Verschiedene, und wenn Dein Kadett Baujahr 88 ist, dann gäbe es noch eine vierte Variante.


    Wenn Du nach Liste angeschlossen hast, und die Liste für Dein Auto passt, dann sollte alles funktionieren.


    Stecker X11 Pin 05 rotblau - ist für die Stromversorgung der Benzinpumpe zuständig. Du musst also am C20NE Motorkabelbaum den großen runden Stecker (X5), und dort Pin 09 suchen. Da sollte im Idealfall ebenfalls ein blaurotes Kabel sein, welches für die Stromversorgung der Benzinpumpe zuständig ist.
    Und logisch, wenn beide für die Stromversorgung der Pumpe zuszändig sind, dann sollten die auch zusammen gesteckt werden.


    Ich nehme an, Du meinst mit X14 3kabel Farbe den Pin 03 am Stecker X14. Das ist die Leitung, die die Motorkontrollleuchte ansteuert.
    Und genau, die muss an Stecker X11 Pin 02 des C16NZ Kabelbaums. Farben beider Kabel sind braunblau. Idealerweise schaust aber, dass die Pins korrekt sind, weil es gibt durchaus Stecker, welche die gleichen Kabelfarben mehrfach nutzen.


    Mir scheint, Du hast die Logik des Kabelstrangs nicht verstanden. Du hast einen Kadett 1.6i und baust dort einen 2.0i ein. Das heißt, dass der Kabelbaum des 1.6i vorhanden ist. Du musst also den Kabelbaum des 2.0i so mit dem Kabelbaum des 1.6i verbinden, dass der 2.0i läuft.
    Wenn jetzt am Stecker X11 ein rotes Kabel, das Dauerplus, übrig ist, dann ist das ja ein Kabel des 1.6i Kabelbaums. Das wird nicht mehr gebraucht. Isoliere es, ignoriere es... spielt keine Rolle. Es ist für die Spannungsversorgung des 1.6i Motorsteuerteils zuständig. Nutzt Du das noch? Nein? Na siehste... Dann brauchst es nicht. Fertig.

  • #5

    Hey 3listen?ich habe die genommen wo kadett 1,5 motronik stand in kadett C16nz was anderes hab ich nicht gesehen... Mein C16nz ist aus 91... Ja das mit dem rotem Kabel vom x11 hab ich mir auch schon gedacht weil ja das C16nz Steuergerät darüber läuft...
    Rot/blau vom x11 verlängern an x5 vom Anlasser Kabelbaum rot/blaues Kabel.
    Also jetzt krass gesagt Stecker x14 bc Tod. Die anderen 3kabel mit den übrigen 3 vom x11 verbinden und fertig? Das Steuergerät bekommt dann Dauer+ vom Anlasser Kabelbaum?

  • #6

    Jupp. Drei verschiedene 1.6i vs. 2.0i Listen.



    Wenn im 2.0i Motorkabelbaum kein Kabel für ein Dauerplus am 2.0i Motor Steuerteil vorgesehen ist... Vielleicht braucht das dann gar kein Dauerplus? Wäre das eine Option?
    Wir reden hier über zwei grundverschiedene Motoren, mit zwei unterschiedlichen Einspritzsystemen und Steuerteilen. Nimm es mal so hin, dass es so funktioniert, wie es da geschrieben steht.


    Die Listen sind bald mehr als 10 Jahre online. Und Du bist der Erste, der solche Fragen stellt. :wacko:

  • #7

    Ich habe im meinem Anlasserkabelbaum am x5 kein braunes kabel sollte aber eigentlich auf pin14 braun/Masse... Versteh ich nicht... Ist das normal?Ansonsten ist der x5 Stecker genau wie beschrieben belegt.und ist ein c20ne Anlasserkabelbaum aus dem kadett 1,5motronik.kann nur der sein laut Liste....

  • #9

    Jetzt mal ganz ehrlich!
    Wenn du keine Ahnung hast von Schaltplänen, warum machst du denn dann den Umbau!?


    Und dir würde mehrfach geraten, einfach einen kompletten Kabelbaum vom C20NE zu organisieren...


    Das hat doch alles keinen Sinn so.

  • #10

    Ich habe motor Kabelbaum und Anlasser Kabelbaum vom c20ne... Der Umbau ist nicht das Problem... Ich versteh auch die Anleitungen.. Technisch habe ich das Verständnis learning by doing ich hab Zeit keiner hätzt mich.. Ich will bloß wissen ob mein Anlasserkabelbaum heil bzw das normal ist das pin14 nicht mit braun Masse belegt ist mehr nicht.... Habe keinen Schlachter wo ich alles abgucken kann... Stell mir das alles selbst zusammen und muss viel gucken und überlegen.

  • Hey,

    dir scheint die Diskussion zu gefallen, aber du bist nicht angemeldet.

    Wenn du ein kostenloses Konto eröffnest merken wir uns deinen Lesefortschritt und bringen dich dorthin zurück. Zudem können wir dich per E-Mail über neue Beiträge informieren. Dadurch verpasst du nichts mehr.


    Jetzt anmelden!